آسانسور تخت بر یکی از نوعهای آسانسورها است که در بسیاری از صنایع و ساختمانها استفاده میشود. این نوع آسانسور به دلیل عملکرد و مزایای خاص خود، بسیار محبوب و مناسب برای مواردی مانند حمل و نقل بارهای سنگین یا استفاده افراد با معلولیت است. در این مقاله، به بررسی جزئیات آسانسور تخت بر، عملکرد آن و مزایا و کاربردهای آن میپردازیم.
آسانسورها به عنوان یکی از ابزارهای حمل و نقل عمومی در ساختمانها و صنایع، نقش بسیار مهمی را ایفا میکنند. اما برای موارد خاصی مانند حمل و نقل بارهای سنگین یا استفاده افراد با معلولیت، آسانسور تخت بر بهترین گزینه است.
آسانسور تخت بر چیست؟
آسانسور تخت بر یک نوع آسانسور بیمارستانی است که در آن حمل و نقل افراد یا بارها استفاده میشود. در این آسانسور، صفحهی تخت و مقاومی به عنوان سطح حمل و نقل قرار دارد که افراد میتوانند بر روی آن قرار بگیرند یا بارها را بر روی آن قرار دهند. به عبارت دیگر، آسانسور تخت بر یک آسانسور با گنجایش بزرگ است که برای حمل و نقل افراد و اشیا به کار میرود.

عملکرد آسانسور تخت بر
قطعات و عناصر آسانسور تخت بر
آسانسور تخت بر از چندین قطعه و عنصر تشکیل شده است که هماهنگی بین آنها باعث عملکرد صحیح آسانسور میشود. قطعات اصلی شامل موارد زیر است:
- صفحه تخت بر: سطح حمل و نقل که بر روی آن افراد یا بارها قرار میگیرند.
- سیستم حرکتی: شامل موتور و سیستمهای مکانیکی که پلهها را به سمت مورد نظر حرکت میدهند.
- سیستم کنترل: برای کنترل حرکت آسانسور و تنظیم سرعت و توقف در نقاط مختلف.
- سیستم ایمنی: شامل سنسورها و وسایل ایمنی مانند قفلها و سیستمهای آتشنشانی است.
روشنایی و وسایل ایمنی
آسانسور تخت بر همچنین باید مجهز به سیستم روشنایی مناسب باشد تا در هنگام استفاده در شب یا در مکانهای تاریک، روشنایی کافی فراهم شود. همچنین، وسایل ایمنی مانند دستگیرهها، پلههای ضد لغزش و سیستمهای آتشنشانی نیز باید در آسانسور نصب شده باشند.

ابعاد چاه آسانسور بیمارستانی تخت بر
برای نصب آسانسورهای تخت بر با ظرفیت ۱۶۰۰ کیلوگرم به چاهی با ابعاد پیشنهادی نیاز داریم. این ابعاد شامل عرض ۲۴۰۰ میلیمتر برای درب تلسکوپی و عرض ۲۹۰۰ میلیمتری برای درب از وسط بازشو است. همچنین ۳۰۰۰ میلیمتر فضا برای عمق این آسانسور نیاز است.
ارتفاع چاهک آسانسور بیمارستانی
مورد قابل توجه در رابطه با آسانسورهای تخت بر تفاوت ابعاد چاهک در سرعت های مختلف است. به این صورت که تا سرعت ۰/۶۳ متر بر ثانیه چاهک این آسانسور باید ۱۶۰۰ میلیمتر باشد و سرعت بالاتر تا ۱/۰ متر بر ثانیه، ارتفاع ۱۷۰۰ میلیمتر باید در نظر گرفته شود. زمانی که سرعت بیشتر شود حداکثر تا ۱/۶ متر بر ثانیه ارتفاع چاهک باید ۱۹۰۰ میلیمتر باشد و درنهایت از سرعت ۱/۶ تا ۲/۵ متربر ثانیه ارتفاع لازم برای چاهک آسانسور تخت بر ۲۵۰۰ میلیمر باید باشد.
مزایا و موارد استفاده از آسانسور تخت بر
سهولت استفاده برای افراد با معلولیت
یکی از مزایای بزرگ آسانسور تخت بر، سهولت استفاده برای افراد با معلولیت است. با داشتن سطح تخت و افقی در آسانسور، افرادی که از وسایل نقلیه کمکی مانند ویلچر استفاده میکنند، به راحتی میتوانند وارد آسانسور شده و به مقصد خود بروند.

مناسب برای حمل و نقل بارهای سنگین
این نوع از آسانسور بسیار مناسب است. با استفاده از آسانسور تخت بر، بارهای سنگین مانند ماشینآلات صنعتی، مواد سنگین ساختمانی یا مخازن انباری به راحتی قابل حمل و نقل هستند. این امر به عنوان یک راه حل موثر در کاهش زمان و هزینههای حمل و نقل محصولات در صنایع مختلف مورد استفاده قرار میگیرد.
کاربردهای مختلف در صنایع و ساختمانها
آسانسور تخت بر به دلیل ویژگیهای خاص خود در صنایع و ساختمانها مورد استفاده قرار میگیرد. برخی از کاربردهای رایج آن عبارتند از:
- صنایع سنگین: در صنایعی که نیاز به حمل و نقل بارهای سنگین دارند مانند صنایع فولاد، معدن، ساخت و ساز و پتروشیمی، آسانسور تخت بر به عنوان یکی از راهحلهای اصلی برای حمل و نقل بارها مورد استفاده قرار میگیرد.
- بیمارستانها و مراکز درمانی: آسانسور تخت بر در محیطهای پزشکی و بیمارستانی برای حمل و نقل بیماران بین طبقات و اتاقها استفاده میشود. این نوع آسانسور بیمارستانی به افرادی که به وسیلهیلچر یا تختبستر نقل میشوند، کمک میکند تا به راحتی و بدون زحمت از یک طبقه به طبقه دیگر منتقل شوند.
- ساختمانهای عمومی: در ساختمانهای عمومی مانند مراکز خرید، هتلها، سینماها و سالنهای کنفرانسی نیز آسانسور تخت بر به عنوان یکی از وسایل حمل و نقل اصلی استفاده میشود. این آسانسورها به افرادی که بارهای سنگین مانند چمدانها، تجهیزات صوتی و تصویری و موارد دیگر را حمل میکنند، اجازه میدهند به راحتی و سریع به طبقات مختلف دسترسی پیدا کنند.
آسانسور بیمارستانی
این نوع آسانسورها جهت حمل و نقل بیمارستان و یا تخت های اتاق های عمل در مرکزهای درمانی از قبیل کلینیک ها ، بیمارستان ها ،درمانگاه ها، نصب و راه اندازی می گردنند. بیمارستان ها عموما در ۲ تا ۳ طبقه و بیشتر بنا می شوند. یکی از مهمترین مواردی که باید در طراحی بیمارستان مد نظر قرار گیرد عرض راهروهاست که باید با ابعاد تخت ها و ترولی های حمل مواد و وسایل متناسب باشد که بهنگام فعالیت آنها مشکلاتی با تردد نفرات بوجود نیاید.
در بیمارستان ها، چند ثانیه میتواند تفاوت بسیاری بوجود آورد زیرا بحث ثانیه ها میتواند مرگ و زندگی را رقم بزند .قابل اعتماد بودن ایمنی این آسانسورها برای جابجایی مسافران ، تخت ها یک ضرورت انکار ناپذیر است.
ما این اطمینان را به شما می دهیم که سیستم های طراحی شرکت ایمن آسانبر لیان در طی زمان طولانی همچنان بهینه باقی بماند تا بیماران و ملاقات کنندگان بی استرس و سرو صدا ، همسطح طبقه به مقصد برسند.
امکانات اولیه پیشنهادی ما برای بیمارستان ها :
- سیستم کنترل کننده فوق العاده انعطاف پذیر
- کنترل سرعت بسیار قدرتمند برای آسانسور های تخت بر
- سیستم داخلی تماس های فردی (Intercom) با پاسخ دهی برای شرایط خاص
- نظارت گسترده ی آسانسور از طریق سیستم کنترل و مدیریت هوشمند
- توانایی کنترل از راه دور ، مانیتورینگ و اصلاح کلیه پارامترها و وضعیت کابین و تبادل اطلاعات توسط مودم
- دارای قابلیت بازشدن درب (Advance Door Opening )، پیش از توقف کامل جهت تسریع عملکرد خروج مسافران
- سیستم نجات برق اضطراری پیشرفته UPS

جدول ابعاد چاله آسانسور بیماربر
ابعاد آسانسور بیمارستان باید در معیارهایی باشد که حداقل یک برانکارد و یک همراه آن ممکن باشد وارد شوند. کابین آسانسور بیمارستان از نظر بهداشتی باید مطابق با قوانین بهداشتی باشد و در جهت پیشگیری از ضد باکتری بودن باید اقدامات احتیاطی انجام شود.
آسانسور تخت بر :
این آسانسورها برای حمل بیمار بر روی یک تختخواب استاندارد به همراه پرسنل و تجهیزات لازم در نظر گرفته شده است. این آسانسور باید دارای بار ۲۵۰۰ کیلوگرم باشد ، مساحت مفید کف کابین ۱۸۰۰ میلی متر با عمق ۲۷۰۰ میلی متر و عرض بازشو درب ۱۴۰۰ میلی متر در هر کجا امکان پذیر باشد ، آسانسورهای تختخوابی باید با BS EN 81-70 مطابقت داشته باشند ، مگر در مواردی که ممکن است با نیازهای بالینی مغایرت داشته باشند.

ابعاد ایده آل آسانسور تخت بر
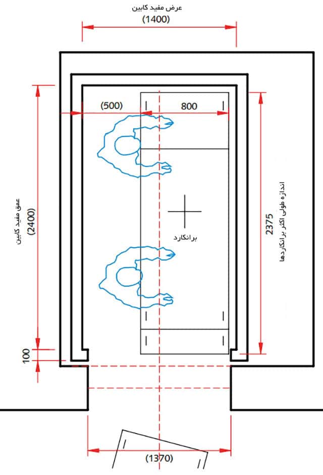
آسانسور برانکاردبر :
این آسانسور برای حمل مسافر (بیمار) بر روی واگن برقی (ابعاد: ۸۰۰ میلی متر در ۲۳۷۵ میلی متر) یا بیمار روی برانکارد به همراه کادر و تجهیزات لازم یا یک تختخواب استاندارد استاندارد بیمارستان خالی در نظر گرفته شده است.
یک آسانسور چرخ دستی / برانکارد باید دارای بار ۱۶۰۰ کیلوگرم با مساحت مفید کف کابین از ۱۴۰۰ میلی متر عرض ۲۴۰۰ میلی متر عمق و بازشو مفید درب ۱۴۰۰ میلی متر باشد. در جایی که از این آسانسورها برای تردد مسافر عمومی استفاده می شود ، هرگونه دستگیره نصب شده نباید وارد قسمت سکوی برانکارد شود.
آسانسور مناسب برای چرخ دستی / برانکارد باید مطابق با BS EN 81-70 باشد.

ابعاد ایده آل آسانسور برانکاردبر
آسانسورهای بیمارستانی ممکن است به عنوان نیمه خودکار ، اتوماتیک کامل یا هیدرولیک طراحی و ساخت شوند.
ابعاد آسانسورهای بیماربر مطابق با استانداردهای بین المللی :
مطابق با استاندارد حداقل ابعاد داخلی کابین آسانسور های تخت بر عمق ۲۴۰۰ و عرض ۱۴۰۰ میلیمتر و کابین آسانسورهای برانکاردبر عمق ۲۱۰۰ و عرض ۱۱۰۰ میلیمتر می باشد .

حداقل ابعاد آسانسورهای بیماربر

جدول ابعاد استاندارد آسانسور بیماربر برای طراحی
جنبههای ایمنی در آسانسور تخت بر
سیستمهای ایمنی مورد استفاده
آسانسور تخت بر باید مجهز به سیستمهای ایمن در دسترس قرار دادم. برخی از سیستمهای ایمنی که در آسانسور تخت بر استفاده میشوند عبارتند از:
- سیستم تشخیص و جلوگیری از برخورد: این سیستم با استفاده از سنسورها و دستگاههای تشخیص برخورد، مانع برخورد آسانسور با اشیاء یا افراد میشود. در صورت تشخیص برخورد، آسانسور توقف یا تغییر مسیر میدهد تا ایمنی را تضمین کند.
- سیستم اضطراری و نجات: آسانسور تخت بر باید مجهز به سیستم اضطراری باشد که در صورت قطع برق یا خرابی دیگر قسمتهای آسانسور، افراد را در داخل آسانسور نجات دهد. این سیستم معمولاً شامل منابع تغذیه ذخیرهسازی شارژ باتری یا سیستم تولید انرژی برای اجرای حرکت اضطراری است.
- سیستم اطفاء حریق: به دلیل اینکه آسانسور تخت بر ممکن است در محیطهایی با خطر حریق قرار گیرد، سیستم اطفاء حریق ضروری است. این سیستم شامل آژیرها، آتشنشانی خودکار، اطفاء اتوماتیک و سیستم اطفاء حریق در شاخهها و سیمکشیهای آسانسور است.
- سیستم قفل دربها: در آسانسور تخت بر، قفل دربها بسیار حائز اهمیت است. این سیستم از باز شدن غیرمجاز دربها جلوگیری میکند و فقط در زمانهای مناسب و با دستور صحیح باز میشود.
- سیستم اعلام و اطلاع رسانی: آسانسور تخت بر باید مجهز به سیستم اعلام و اطلاع رسانی باشد که در صورت وقوع خطر یا خرابی، اطلاعات لازم را به کاربران و مسئولین مناسب ارائه کند. این سیستم میتواند شامل نمایشگرها، آژیرها، دستگاههای تماس اضطراری و سایر وسایل ارتباطی باشد.
این سیستمهای ایمنی در آسانسور تخت بر برای حفظ ایمنی و جلوگیری از وقوع حوادث مهم هستند. اما همچنین باید توجه داشت که نگهداری و بازرسی منظم این سیستمها نیز برای حفظ کارایی و قابلیت اطمینان آسانسور ضروری است.